Проект кутової кухні (34 фото): дизайн-планування кухонних гарнітурів з правим і лівим кутом, варіанти розміщення меблів

Проект кутової кухні (34 фото): дизайн-планування кухонних гарнітурів з правим і лівим кутом, варіанти розміщення меблів

Незважаючи на те, що кухня в будь-якому проекті вважається нежилим допоміжним приміщенням, більш «житлової кімнати в квартирі, мабуть, немає. Саме в ній сім’я снідає вранці перед відходом в школу, на роботу, в дитячий сад, там же зустрічається і вечорами, обговорюючи події минулого дня. Одним словом, це приміщення не може бути виключно функціональним, воно обов’язково повинно бути затишним і комфортним.

Проект кутової кухні (34 фото): дизайн-планування кухонних гарнітурів з правим і лівим кутом, варіанти розміщення меблів
Проект кутової кухні (34 фото): дизайн-планування кухонних гарнітурів з правим і лівим кутом, варіанти розміщення меблів

З чого почати?

Створення абсолютно оригінального, ні на що не схожого дизайнерського проекту – справа непроста, особливо, якщо у вас відсутній відповідну освіту. Що ж стосується більш простого способу – знайти підходяще за розміром і стилем готове оформлення і перенести його на свою кухню, це може стати відмінним виходом із ситуації. Найголовніше – правильно вибрати дизайн, «вписавшись» і передбачуваний бюджет, і розміри вашої кухні.

Умовно планування кухонної зони можна розділити на ряд кроків:

  • вибір місця, де буде встановлена меблі гарнітур, стіл, куточок і стільці;
  • вибір дизайну, в якому буде оформлено приміщення;
  • підбір колірної комбінації;
  • вибір видів обробки стін, стелі, буде фартух і т. д.;
  • рішення того, як буде освітлено приміщення;
  • вибір оформлення віконних прорізів.

Проект кутової кухні (34 фото): дизайн-планування кухонних гарнітурів з правим і лівим кутом, варіанти розміщення меблів
Проект кутової кухні (34 фото): дизайн-планування кухонних гарнітурів з правим і лівим кутом, варіанти розміщення меблів

Якщо ви вмієте працювати в одному з комп’ютерних програм, на яких можна розробити і подивитися, як буде виглядати приміщення після ремонту, це великий плюс, оскільки можна відразу отримати наочне уявлення про пропорції, розміри, а також про те, чи подобається вам майбутній результат або що потребує коригування.

Проект кутової кухні (34 фото): дизайн-планування кухонних гарнітурів з правим і лівим кутом, варіанти розміщення меблів

Що особливо цінно, такі програми дозволяють оцінити і вид кухні зверху, і з різних ракурсів, покрутити проект так, як вам завгодно, тобто розглянути його як слід.

Після того як тривимірний результат вас повністю задовольнив, ви можете приступити до втілення його в життя.

Проект кутової кухні (34 фото): дизайн-планування кухонних гарнітурів з правим і лівим кутом, варіанти розміщення меблів
Проект кутової кухні (34 фото): дизайн-планування кухонних гарнітурів з правим і лівим кутом, варіанти розміщення меблів

Варіанти планування та наповнення

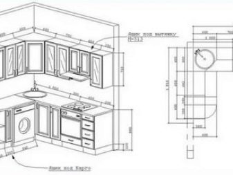
Кутову планування по праву вважають найбільш економної і зручної, так як вона займає менше всього корисної площі і при цьому, як правило, досить містка. Кухня «кутом» складається з трьох основних елементів: кутового сегмента і двох бічних. Відповідно, і розташування йде по двом сусіднім стін.

Як правило, планування починається саме з кута, поступово розширюючись до потрібного розміру. Компонування відбувається таким чином, що по верху проходять навісні шафки, а внизу розташовуються тумби.

Проект кутової кухні (34 фото): дизайн-планування кухонних гарнітурів з правим і лівим кутом, варіанти розміщення меблів
Проект кутової кухні (34 фото): дизайн-планування кухонних гарнітурів з правим і лівим кутом, варіанти розміщення меблів

Проект кутової кухні (34 фото): дизайн-планування кухонних гарнітурів з правим і лівим кутом, варіанти розміщення меблів

Проект кутової кухні (34 фото): дизайн-планування кухонних гарнітурів з правим і лівим кутом, варіанти розміщення меблів

Проект кутової кухні (34 фото): дизайн-планування кухонних гарнітурів з правим і лівим кутом, варіанти розміщення меблів

Проект кутової кухні (34 фото): дизайн-планування кухонних гарнітурів з правим і лівим кутом, варіанти розміщення меблів

Як і в будь-якого типу планування, кутова є достоїнства і недоліки. До перших можна віднести:

  • можливість створення ергономічного робочого трикутника;
  • компактність і при цьому велика місткість гарнітурів, спланованих подібним чином;
  • можливість влаштувати шафи по своєму смаку, обладнати їх розумною фурнітурою;
  • за рахунок кута вивільняється додаткова площа;
  • внаслідок економії місця можна зонувати кухню, виділивши обідню і робочу зони.

З недоліків можна виділити наступні:

  • обов’язково потрібний кут, причому місткий;
  • приміщення зі складною формою (ніші, виступи, повітроводи, нерівні стіни) можуть викликати труднощі з розташуванням кутового кухонного гарнітура;
  • у більшості випадків потрібне виготовлення меблів на замовлення, що значно підвищує її вартість.

Проект кутової кухні (34 фото): дизайн-планування кухонних гарнітурів з правим і лівим кутом, варіанти розміщення меблів
Проект кутової кухні (34 фото): дизайн-планування кухонних гарнітурів з правим і лівим кутом, варіанти розміщення меблів

Що стосується варіантів планування, їх кілька. Класичним є той, при якому стіна розташовується по двом перпендикулярним стін. Він же самий зручний в плані розміщення, так як підійде для більшої частини кухонь. Техніка, в тому числі і вбудована, і шафи з полицями можна облаштувати і обставити так, як хочеться. Цей варіант може бути як правостороннім, так і лівостороннім.

Другий вид планування – наявність півострова. У такому варіанті по одній стіні проходить одна сторона гарнітура, а друга не стосується ні однієї зі стін, при цьому розташована під кутом 90 градусів щодо першої сторони. Ця частина, розташована вільно, називається півострів. З її допомогою відбувається розділ кухні на власне робочу і обідню зону. Установка такого гарнітура можлива лише в приміщеннях великої площі.

Проект кутової кухні (34 фото): дизайн-планування кухонних гарнітурів з правим і лівим кутом, варіанти розміщення меблів
Проект кутової кухні (34 фото): дизайн-планування кухонних гарнітурів з правим і лівим кутом, варіанти розміщення меблів
Проект кутової кухні (34 фото): дизайн-планування кухонних гарнітурів з правим і лівим кутом, варіанти розміщення меблів

Третій варіант кутової кухні – той, що обладнаний барною стійкою. В малогабаритній квартирі такі стильні гарнітури виглядають іноді трохи дивно, проте в заміському будинку або квартири нового планування, студіях, «лофтах» вони будуть виглядати доречно, оригінально і свіжо. Особливо цінно наявність барної стійки в сім’ях, де не передбачені тривалі застілля, і повноцінна обідня зона в кухні не потрібна.

Проект кутової кухні (34 фото): дизайн-планування кухонних гарнітурів з правим і лівим кутом, варіанти розміщення меблів
Проект кутової кухні (34 фото): дизайн-планування кухонних гарнітурів з правим і лівим кутом, варіанти розміщення меблів

Найбільш зручна та планування, яка відповідає вимогам ергономіки. І ось тут кутові гарнітури займають лідируючі позиції, незалежно від того, права чи ліва стіна задіяна в дизайні. Принцип робочого трикутника найкращим чином відповідає вимогам ергономіки. В його вершинах лежать холодильник, поверхню плити і раковина. Розташувавши їх рівнобедреним трикутником, можна мінімізувати зайві рухи в процесі приготування їжі.

Чим раціональніше організовано «трикутник», тим менше часу і зусиль займе приготування їжі.

Проект кутової кухні (34 фото): дизайн-планування кухонних гарнітурів з правим і лівим кутом, варіанти розміщення меблів
Проект кутової кухні (34 фото): дизайн-планування кухонних гарнітурів з правим і лівим кутом, варіанти розміщення меблів

Розробка дизайну

Кут всередині гарнітура може бути скошений або прямий. Перший варіант значно зручніше, так як з його допомогою простіше потрапити у внутрішню частину шаф. Відбувається це за допомогою простого відкривання дверцят. Якщо в такому куті розташовані варильна поверхня або мийка, то під нею буде достатньо місця для того, щоб розмістити все бажане. Однак захоплюватися занадто скошеним кутом не потрібно, якщо надмірно «скосити», фартух буде важкодоступний. Потрібно знайти оптимальну глибину модуля.

Дизайн повинен не тільки відповідати естетичним уподобанням власника, але і бути максимально зручним і комфортним для всіх членів сім’ї, які проживають у цій квартирі. Тобто, якщо це сім’я, в якій багато готують, ергономіка повинна бути на вищому рівні. Є сенс зупинитися на варильної поверхні з чотирма або шістьма конфорками, якщо сім’я велика.

Проект кутової кухні (34 фото): дизайн-планування кухонних гарнітурів з правим і лівим кутом, варіанти розміщення меблів
Проект кутової кухні (34 фото): дизайн-планування кухонних гарнітурів з правим і лівим кутом, варіанти розміщення меблів

Якщо ж стіна розробляється для сім’ї або людини, які вдома практично не харчуються, однак люблять вечірки, в тому числі і домашні, тоді правильним буде організувати барну стійку, вона ж стане обідньою зоною. Також потрібні будуть шафки для склянок, рюмок і фужерів або стійка-тримач для келихів зразок тих, якими обладнані бари. Для цінителів вина у гарнітур можна гармонійно вписати винний шафа.

Як показує практика, чим більше дрібних деталей і інтересів власника враховано при проектуванні кухні, тим більш зручна і комфортна вона в процесі користування. Що стосується стилю інтер’єру, то кожний з них передбачає кутовий стіна на кухні. Будь те класика, мінімалізм або прованс, кухня, вирішена в цьому стилі, чудово буде виглядати в кутовому дизайні.

Проект кутової кухні (34 фото): дизайн-планування кухонних гарнітурів з правим і лівим кутом, варіанти розміщення меблів
Проект кутової кухні (34 фото): дизайн-планування кухонних гарнітурів з правим і лівим кутом, варіанти розміщення меблів
Проект кутової кухні (34 фото): дизайн-планування кухонних гарнітурів з правим і лівим кутом, варіанти розміщення меблів

Особливості проектування кухонного гарнітура для маленької кухні

У кухнях маленькій площі найчастіше застосовуються прямі кути. Це, звичайно, суттєво зменшує внутрішню площу гарнітура. Щоб спростити витяг різних предметів з шафок, можна використовувати різні варіанти внутрішнього дизайну – розкладні або висуваються полиці і шафи. Невеликі квартири також потребують максимальному використанні площ, тому актуальним буде проект кухні з антресоллю, де можна розмістити рідко використовувані речі, що не піддаються псування внаслідок високих температур і запахів кухні. При наявності можливості і площі краще вдатися до обладнання барної стійки.

При необхідності вона може стати додатковою робочою поверхнею, крім того, надасть додаткового шику кухні, стане родзинкою інтер’єру.

Проект кутової кухні (34 фото): дизайн-планування кухонних гарнітурів з правим і лівим кутом, варіанти розміщення меблів
Проект кутової кухні (34 фото): дизайн-планування кухонних гарнітурів з правим і лівим кутом, варіанти розміщення меблів

Проект кутової кухні (34 фото): дизайн-планування кухонних гарнітурів з правим і лівим кутом, варіанти розміщення меблів

Проект кутової кухні (34 фото): дизайн-планування кухонних гарнітурів з правим і лівим кутом, варіанти розміщення меблів

Проект кутової кухні (34 фото): дизайн-планування кухонних гарнітурів з правим і лівим кутом, варіанти розміщення меблів

Проект кутової кухні (34 фото): дизайн-планування кухонних гарнітурів з правим і лівим кутом, варіанти розміщення меблів

У наступному відео вас чекає ідеальна планування кутової кухні.

Добавить комментарий

Ваш e-mail не будет опубликован. Обязательные поля помечены *

*

code